
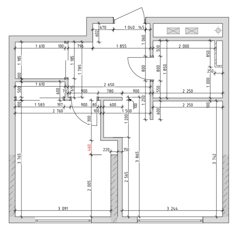
Обмерный план помещения
С указанием Высоты/Ширины/Глубины стен, потолка, окон, дверных проемов, площади помещения. Дать образец покрытия — обои, штукатурка или что-то другое, прописать название, фирму, артикул.

План пола
Схема с указанием раскладки плитки, направления паркета, предоставить образец покрытия — ламинат, плитка, паркет, прописать название, фирму, артикул

План потолков
С обозначением размеров, уровней, границ, материала потолка (если потолок разноуровневый). Дать образец покрытия, прописать название, фирму, артикул

План освещения
С обозначением скрытой подсветки потолка, расположения светильников, люстр.

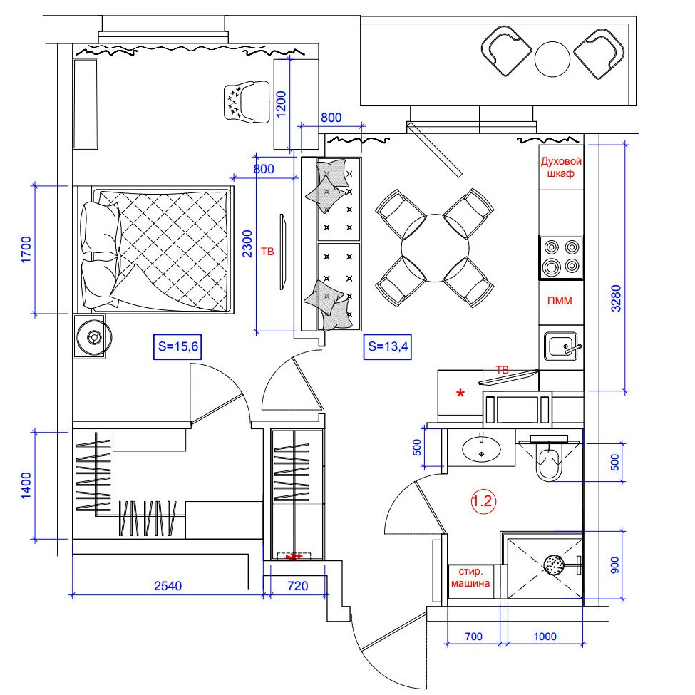
План расстановки мебели
Приложить ссылки на мебель в ТЗ.
Если мебель на заказ, то нужны ее чертежи (например чертежи кухонного гарнитура).

План розеток
И выключателей (если нужно их указать).

Развертка стен с мебелью
Развертка по стенам помещений с указанием высоты дверных и оконных проемов, высоты подоконников, раскладкой плитки, обозначением материалов стен, текстуры узоров, расположения мебели, техники и т. д.

Фактуры, мебель, декор, заполнение помещения, отделочные материалы и т. д.
Это может быть как коллаж расстановки моделей, и/или файл с фото, ссылками на модели, сайт производителя, продавца.





Цветовая гамма
Дополнительно должны быть приложены цветовое сочетание, изображения, которые понравились вашему заказчику, примеры интерьеров по стилю, настроению, наполнению.

Чем подробнее ТЗ, тем лучше мы с вами поймем друг друга, правок будет гораздо меньше и работа пойдет быстрее 🤍